기업정보
회사소개
인사말
회사연혁
오시는길
사업분야
제조업
건설업
사업소개
기술자료
규격서
성적서
제품상세도
인증
특허
시공실적
모바일 메뉴 닫기 버튼
기업정보
회사소개
인사말
회사연혁
오시는길
사업분야
제조업
건설업
사업소개
기술자료
규격서
성적서
제품상세도
인증
특허
시공실적
제품상세도
혁신건설기술, 상생과 소통경영, 존중과 배려는 우리가 지향하는 기업의 가치입니다
제품상세도 카테고리
에스에스건설
게시물 검색
검색대상
검색어
필수
검색
선명건설
차양 상세도
다운로드
미리보기
금속제창 상세도
다운로드
미리보기
금속제기타울타리 상세도
다운로드
미리보기
실내벽체마감패널 상세도
다운로드
미리보기
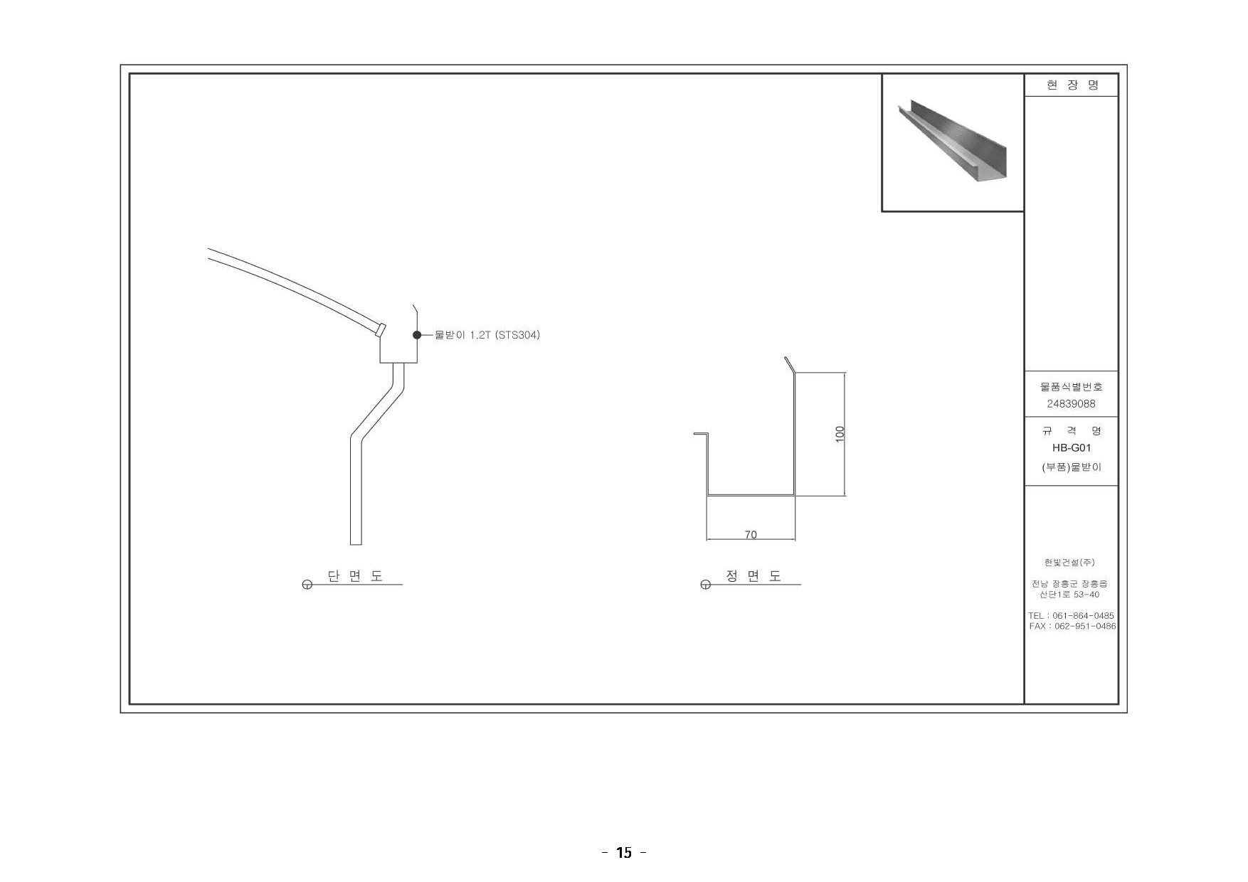
한빛건설
차양 상세도
다운로드
미리보기
금속제창 상세도
다운로드
미리보기
금속제기타울타리(안전난간) 상세도
다운로드
미리보기
실내벽체마감패널 상세도
다운로드
미리보기
선한건설
실내벽체마감패널 상세도
다운로드
미리보기
금속제기타울타리(안전나간) 상세도
다운로드
미리보기
차양 상세도
다운로드
미리보기
현민건설기술
실내벽체마감패널 상세도
다운로드
미리보기
차양 상세도
다운로드
미리보기
금속제기타울타리(안전난간) 상세도
다운로드
미리보기
에스에스건설
금속제기타울타리(안전난간) 상세도
다운로드
미리보기
실내벽체마감패널 상세도
다운로드
미리보기
차양 상세도
다운로드
미리보기
해당페이지 상단으로 이동